Home
Completed Projects
THE PLATINUM Las Vegas
Timber Ridge Lodge
Mill Creek
Chicago Condominiums
Park Pointe
HOULIHAN'S - Chicago
Harbor Cove
The Cove of Lake Geneva
HOULIHAN'S - Lake Geneva
Copa Cabana Resort
The Ice Cream & Yogurt Club
Rush Street Place
Mariner's Cove at Lighthouse Bay
Lighthouse Cove
Sunset Cove
Blue Water Condominiums
Blue Water A-Frames
Aqua Sports Marina
Barrier Reef
Press Coverage
Michael Jordan Teams Up
Jordan Places Bet on Las Vegas Development
High-rise Developer Brings Strengths to Vegas
Living the Life off the Strip
A New Kind of Suite Deal
Strip View
Aqua Sports Opens Waterways
A 21st Century Getaway
Super Structures
Resorting on Shore
Resorting to Rental
Great Escapes
Living on the Waterfront
Buyers Flock to the Shores
Weekend Getaways
The Art of Deals and Dreams
Profile of James Graaskamp
Resume
Contact
Back
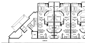
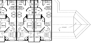
Mill Creek Condominium Development (34 Homes) - Lake Geneva, Wisconsin
© 2003 - Diversified Real Estate Concepts, Inc.